Vue d'ensemble
 
     
 
 
 

Vue d’ensemble de l’étape II

 
 
 
   


1ère étape de la restauration








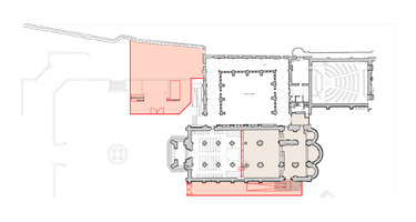
Le chantier de la restauration de l’intérieur de la Collégiale et du cloître sera divisé en trois temps de manière à maintenir tout au long des travaux l’usage de la Collégiale dans une moitié de l’église au moins. Le chantier débutera avec la restauration intérieure du cloître et l’aménagement des locaux à l’est de celui-ci. Cette première étape de chantier se terminera avec la réouverture de la porte murée par Léo Châtelain entre la Collégiale et le cloître. Cette intervention sera ponctuelle et se fera en conservant la Collégiale ouverte.

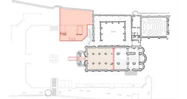
Les interventions intérieures à proprement parler débuteront dans le choeur de l’église et le tiers oriental de la nef, le culte occupant les deux tiers restants à l’ouest (schéma du haut). L’orgue Saint Martin sera déplacé au fond de l’église afin de permettre l’activité des concerts et des cultes. Le cloître sera, dans cette deuxième phase à nouveau accessible au public.

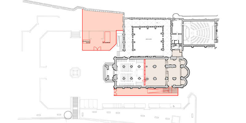
Puis une rocade sera faite: le culte s’installera dans la partie orientale restaurée de l’église, le chantier reprenant dans la partie occidentale (schéma du bas).

 



1ère étape de la restauration








 

 
 
 
© 2009-2016 Conservation et restauration de la Collégiale de Neuchâtel - Tous droits réservés