 |
 |
 |
 |
 |
 |
 |
 |
 |
 |
 |
Cette gravure de la Collégiale de Neuchâtel, publiée en 1869, représente le chevet de la Collégiale une année environ avant la fin des travaux de restauration conduits par Léo Châtelain (gravure sur bois, d'après une aquarelle de Léo Châtelain, publiée en 1869 dans «Le Véritable messager boiteux de Neuchâtel»).
Cliquez pour agrandir l’image |
 |
 |
 |
Implantation du ceinturage de la souche de la tour lanterne. L'insertion de tirants devrait augmenter le contreventement des faces de la souche, et une légère précontrainte leur résistance à la flexion provoquée par la pression des arcs du voûtement intérieur (schéma Glauser-Tara sur base Archéotech, 2006-2007).
Cliquez pour agrandir l’image |
 |
 |
 |
Visualisation de la restauration de la façade sud. La moitié gauche du dessin (travées occidentales de la nef) montre un état assaini et réhabilité, dans lequel la perception des surfaces est privilégiée sans que soit effacé pour autant le traitement des parements voulu par Léo Châtelain. Dans la moitié droite du dessin, l'église est représentée dans son état actuel (document AMStN sur base Archéotech, 2006-2007).
Cliquez pour agrandir l’image |
 |
 |
 |
Illustration de gauche: Les coulures dues à un défaut d'étanchéité des verrières ou à de la condensation hivernale sur les verres sont particulièrement visibles aux baies du dôme de la tour lanterne (photographie AMStN, 2006).
Illustrations de droite: Les vitraux de Théodore Delachaux à la rose occidentale et ceux de Clement Heaton à l'abside du chour (photographies AMStN, 2007).
Cliquez pour agrandir l’image |
 |

|
 |
La restauration de l'enveloppe du cloître sera conduite parallèlement à celle de l'enveloppe de la Collégiale et sur les mêmes principes d'intervention (document AMStN, 2006).
Cliquez pour agrandir l’image |
 |

|
 |
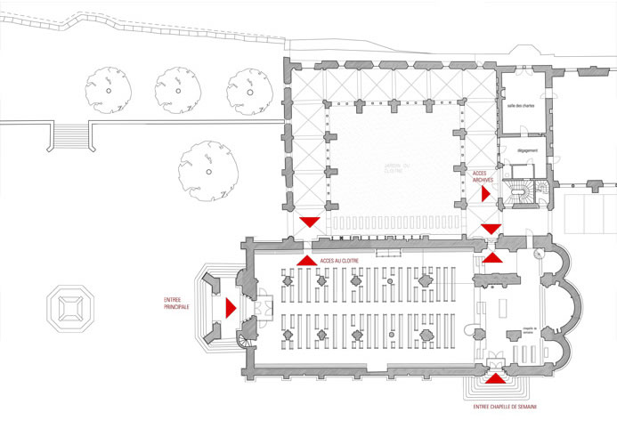
Renouvellement des circulations à l'intérieur du complexe Collégiale-cloître. La porte nord-est de la Collégiale, murée vers 1870, est réouverte pour rétablir le lien direct qui a toujours existé entre les volumes intérieurs de l'église et l'espace semi-ouvert du cloître (document AMStN, 2006).
Cliquez pour agrandir l’image |
 |
|
Une restauration au carré
Par plusieurs de ses traits, l'image léguée par la restauration de Léo Châtelain ´ la Collégiale de Neuchâtel appartient désormais au monument lui-même et ´ son histoire. D'une part parce que les manques qui résulteraient d'une éventuelle dérestauration de la Collégiale ne pourraient être comblés - faute de vestiges suffisamment consistants laissés par Châtelain. D'autre part parce que le travail de Châtelain ´ la Collégiale donne ´ l'église une physionomie d'un grand intérêt non seulement pour l'édifice lui-même mais pour l'agglomération de Neuchâtel prise dans son ensemble: la restitution de la seconde tour de chevet, par exemple, ou la recomposition du massif occidental de la nef, fixent ´ la fois l'image actuelle du complexe et la silhouette générale de la ville. Le projet de restauration actuel prend acte de cette page très spectaculaire de l'histoire du monument écrite ´ la fin du 19e siècle.
Ouverture au nouveau
L'intervention actuelle doit être comprise comme la restauration d'une restauration, une restauration "au carré" en quelque sorte. Aucun retour hypothétique ´ un état d'avant Léo Châtelain n'est proposé, mais une intervention qui se profile "au-del´" de Châtelain avec, dans ce dépassement, une ouverture ´ la nouveauté: la restauration, par exemple, de quelques qualités spatiales ou architectoniques de l'église médiévale aujourd'hui imperceptibles ou, ´ l'inverse, la réalisation de dispositifs contemporains rendus nécessaires par la pratique moderne du monument.
Consolidations structurelles Le dôme de la tour lanterne présente un déséquilibre. L'intervention prévoit un ceinturage de la souche, filé dans l'épaisseur des murs, en dessous et en dessus du niveau des baies. Concrètement, douze tirants seront forés dans l'épaisseur de la souche avec clés de serrage placées aux angles de la tour. Ces tirants rétabliront la continuité horizontale des faces aujourd'hui interrompue par des fissures verticales et traversantes. Ils devraient également renforcer la capacité des faces verticales de la lanterne ´ résister aux sollicitations sismiques. Une légère précontrainte des tirants permettra de reprendre la poussée horizontale imprimée sur le centre des faces par les arcs axiaux du dôme. L'intervention restera donc invisible depuis l'intérieur de l'église comme depuis l'extérieur. Seules les clés d'ancrage de la ceinture restent visitables (notamment dans les combles), de manière ´ pouvoir contrôler en permanence le bon état de fonctionnement des tirants mis en place. Conservation des façades Dans la logique d'une restauration "au carré" du travail de Léo Châtelain, les façades de la Collégiale seront laissées dans l'état hérité des travaux menés en 1870. Cela signifie qu'elles ne seront ni réenduites, ni repeintes, sauf en quelques endroits bien circonscrits. Des retouches de couleur ponctuelles permettront d'harmoniser les parements en insistant plus sur l'unité des surfaces que sur la variété des matériaux qui les constituent. Traitement des joints
Les pierres seront nettoyées, chacune en fonction de sa nature, de l'état de sa conservation ou du type d'altération qu'elle présente. Le traitement des joints de finition, actuellement largement érodés, sera particulièrement délicat dans cette opération, puisque de leurs texture, couleur et position par rapport au nu général de la maçonnerie dépendra largement la perception qui sera donnée de l'architecture: placés légèrement en retrait, les joints souligneront la structure des pierres dans le mur; alors que placés ´ fleur - soit ce qui est visé - ils souligneront les éléments architectoniques pris dans leur ensemble et permettront une perception des masses qui, sans effacer Léo Châtelain, renouvellera néanmoins la lecture architectonique de l'église. Les vitraux La Collégiale comprend quatre séries de vitraux dont la première remonte ´ la restauration de la fin du 19e siècle (L. Châtelain, ca 1870, 21 pièces ornementales). Les trois autres se sont progressivement constituées au cours de la première moitié du 20e siècle: 1905 (Clement Heaton, 8 pièces dans le chevet), 1930-1947 (Théodore Delachaux, 8 pièces dont la rose occidentale), 1950-1951 (Marcel Poncet, 8 pièces). Intervention minimale
Le bon état général de conservation des vitraux ´ la Collégiale permettra de limiter l'intervention de restauration ´ un entretien différé, soigné, évitant toute intervention lourde et, dans la mesure du possible, la dépose des panneaux et des châssis: sont prévus nettoyages in situ, consolidations, remasticage des panneaux, traitement des barlotières en fer, adjonction de rigoles de récupération des eaux de condensation. Cette intervention minimale de conservation se complétera en certains secteurs seulement (les vitraux hauts de la nef et ceux du dôme de la tour lanterne) par une mesure additionnelle de protection mécanique et climatologique: les verrières seront doublées par un verre extérieur qui les protégera ´ la fois du bris et de la condensation hivernale. Réhabilitation Le projet d'intervention au cloître a deux objectifs: la restauration des structures ainsi qu'une revalorisation de ce lieu comme pivot de la distribution des activités qui se développeront dans la Collégiale. Détérioration importante
Enceintes et soutènements mis ´ part, le cloître est l'élément bâti du site dont la détérioration est la plus évidente: les toitures surtout, mais aussi les façades de maçonnerie dont la dégradation s'accroît au fur et ´ mesure que s'affaiblissent les enduits protecteurs. Une fragilité de fondation est également sensible, due au mauvais état du sous-sol sur lequel le cloître est implanté (façade nord du cloître particulièrement). Les travaux de restauration du cloître seront conduits dans un souci de conservation en tout point semblable ´ celui qui caractérisera les travaux ´ la Collégiale, afin qu'un même parti d'intervention soit étendu ´ l'ensemble du complexe. Rétablissement du lien collégiale-cloître Profitant des travaux de restauration structurels, le nombre et la qualité des liens qui rattachent le cloître aux bâtiments implantés sur sa périphérie seront renforcés: non seulement avec l'aile "Grand Conseil" du château, mais surtout avec la Collégiale elle-même. Lien direct antique
Le projet prévoit la réouverture de la porte ouest du bas-côté nord de la Collégiale - murée depuis la restauration de Châtelain - de manière ´ rétablir un très antique contact direct entre les volumes intérieurs de la collégiale et les surfaces semi-ouvertes du cloître. Ces deux secteurs aux caractères spatiaux complémentaires se valoriseront ainsi de manière intime et enrichiront réciproquement les deux pôles de l'activité actuelle de la Collégiale que sont le culte (cultes, mariages, cérémonies) et la culture (après concerts, expositions, visites). |