 |
Coupe longitudinale à travers la Collégiale, vue vers le sud, avec visualisation des parements avant et après traitement. La moitié gauche de la coupe présente l'état de conservation actuel des parois de l'église. La moitié droite (travées occidentales de la nef) montre un état assaini et réhabilité (document AMStN sur base Archéotech, 2006-2007).
Cliquez pour agrandir l’image |
 |
Visualisation du projet de réhabilitation des voûtes de la Collégiale. Représentation idéalisée du traitement des voûtains et des arcs des trois premières travées occidentales de la nef et des bas-côtés, traitement qui serait étendu, de manière cohérente, à l'ensemble du voûtement de l'église (document AMStN sur base Archéotech, 2006-2007).
Cliquez pour agrandir l’image |
  |
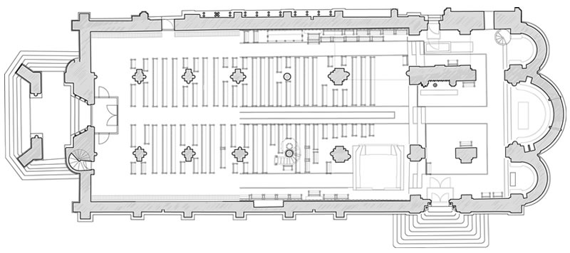
Plan de la Collégiale avec, dans le tiers inférieur, une représentation du nouveau sol. Les parquets de bois qui se trouvent aujourd'hui sous les bancs seront supprimés: le sol ainsi simplifié permettra d'unifier les différents espaces de l'église. L'axe central de la nef est également libéré de la longue grille de ventilation qui l'occupe actuellement (document AMStN sur base Archéotech, 2006-2007).
Cliquez pour agrandir l’image |
 |
llustration du haut: Disposition possible d'un futur mobilier, avec couloir central libre (document AMStN, 2006).
Illustration du bas: Disposition possible d'un futur mobilier, avec couloir central occupé par des bancs d'appoint. Dans sa plus grande configuration, un tel mobilier permettrait de porter la capacité de la Collégiale à 550 places (document AMStN, 2006).
Cliquez pour agrandir l’image |
 |
Illustration de gauche: Chronologie des étapes de construction du tombeau des Comtes de la Collégiale. Relevé établi par les conservateurs-restaurateurs en collaboration avec les archéologues, les historiens de l'art et les spécialistes qui ont participé à l'important chantier de restauration conduit de 1996 à 1999 (document atelier Marc Stähli, 1997).
Illustration de droite: Etat de conservation du décor peint de la chapelle St-Léonard en 2000 (photographie atelier Marc Stähli, 2000).
Cliquez pour agrandir l’image |

|
Coupe schématique à travers la nef indiquant la stabilisation des courants de convection à l'intérieur de l'église: Le mouvement descendant des masses d'air chaud refroidies au contact des façades est contré par une légère pulsion d'air tempéré disposée à la périphérie du monument (document Planair, 2006-2007).
Cliquez pour agrandir l’image |
 |
Plan des évacuations de secours avec équipements de balisage et d'asservissement des issues (document André Pasche sur base Archéotech, 2006).
Cliquez pour agrandir l’image |
|
Conservation des parois intérieures
Même si la demande actuelle ne porte que sur la première des trois étapes prévues, il a paru indispensable que le projet soit vérifié dans sa globalité de manière à ce que les choix faits lors de la première étape n'hypothèquent pas les développements ultérieurs de la réflexion.
Comme pour la restauration des élévations extérieures, le projet de restauration des volumes intérieurs de la Collégiale intègre l'ensemble des connaissances (historiques, archéologiques, matérielles, etc.) acquise lors des études préliminaires. Comme en façade, l'intention est de donner à l'intérieur les conditions d'une lecture nouvelle des volumes: une lisibilité privilégiant la perception des surfaces et des espaces de l'architecture plus que celle de ses constituants archéologiques.
Projet pour les voûtements Au-delà des travaux indispensables à la conservation et à la consolidation des vestiges existants, qui rendront aux différentes strates d’enduits et de badigeons la cohésion qui leur manque aujourd’hui, le projet prévoit une restauration du ciel étoilé datant de l’intervention de Châtelain.
Au vu de l’état de conservation hétérogène de l’enduit de 1870, différents traitements doivent être appliqués selon les secteurs. En effet certains secteurs de crépi paraissent très difficilement conservables et nécessiteraient des interventions trop lourdes. Selon le relevé, ce serait le cas pour 40% des crépis (répartis par zones ou parfois par voutains entiers) tandis que la partie conservable des crépis est estimée à ~60% de la surface des voûtes. Cette évaluation a conduit à l’option d’intervention suivante: la conservation partielle (environ 60%) des crépis et badigeons et la réfection des 40% restants. Cette option permet de conserver au maximum les enduits et couches picturales de la restauration de Châtelain tout en permettant d’assainir des secteurs trop altéré dont la conservation resterait très aléatoire.
Projet pour le sol La dégradation de la structure porteuse du sol actuel (réalisé par Léo Châtelain entre 1867 et 1870), les exigences d'un chauffage plus propice à la conservation de l'église et plus économe en énergie (basse température, à accumulation) contraindront à remplacer le dallage actuel de l'église par un nouveau sol minéral qui satisfasse à ces différentes exigences. Il devrait permettre en particulier de distribuer les fluides nécessaires aux équipements du confort contemporain (chauffage de base et d'appoint, électricité, ventilation) tout en permettant d'assouplir les possibilités d'utilisation de l'église.
Le projet de sol prévoit la suppression des planchers actuels qui chevauchent sans les reconnaître les espaces de la nef et des bas-côtés. Ils seront remplacés par deux grandes surfaces minérales, homogènes et ouvertes à toute occupation. Le carrelage de l’allée centrale et la grille de ventilation à l’axe de la nef seront conservés comme particulièrement significatifs de l’intervention de la fin du 19e siècle. Ils mèneront au choeur de l’église dont le sol sera traité de la même manière que ceux de la nef et des bas-côtés: les surfaces de plancher y seront supprimées, mais remplacées cette fois par les carreaux de grès récupérés des bas-côtés de la nef. Les sols du chevet, aujourd’hui très hétéroclites en couleurs et en textures, retrouveront ainsi l’unité matérielle qui leur manque actuellement. Projet pour le mobilier La reconstruction du sol de la collégiale posera, dans un second temps, la question des bancs réalisés par Léo Châtelain il y a 130 ans à partir d'un mobilier plus ancien encore qu'il transforme et complète. Dans leur disposition actuelle, les bancs de Châtelain ne donnent pas satisfaction: leur capacité est limitée et ils proposent surtout une grande proportion de places sans visibilité. Originellement, les bancs de Châtelain étaient placés autour de la 3e pile sud de la nef portant la chaire. Le principe de cette disposition centrée remonte à l'introduction du culte réformé à la Collégiale. Mais elle est aujourd'hui abandonnée au profit d'un retour à l'orientation axiale du mobilier, orientation qui met d'ailleurs en question la localisation actuelle de la chaire et l'adéquation du mobilier à ce nouveau positionnement. Distribution améliorée
Le projet devrait opter pour une conservation du mobilier réalisé par Châtelain, en raison de son intérêt patrimonial, mais en le modifiant à son tour. Le nombre de places de bonne qualité visuelle et acoustique en serait considérablement augmenté. La distribution se ferait alors en périphérie de la nef, par les bas-côtés nord et sud. La disposition des bancs, avec un couloir central libre de toute place assise, demeurerait toutefois la disposition de base.
Une translation de la chaire sur la pile sud-est de la croisée est également envisagée, implantation plus conforme à l'orientation actuelle de l'assemblée.
Monuments et chapelles La Collégiale de Neuchâtel s'est enrichie au cours des siècles de plusieurs monuments, sculptés ou peints, liés à la fonction funéraire de l'église ou à la présence d'anciennes chapelles. Cénotaphe et autres ouvres
Le plus connu d'entre eux est incontestablement la "machina" des 14e et 15e siècles, tombeau élevé à la mémoire des Comtes de Neuchâtel, traditionnellement appelée "Cénotaphe". L'importante restauration dont cet ouvrage extraordinaire a fait l'objet entre 1996 et 1999 ne doit pas faire oublier la condition d'autres ouvres. Tout aussi précieuses mais moins spectaculaires, elles échappent parfois à l'attention conservatoire. Le décor peint conservé dans la niche de la chapelle St-Léonard (14e siècle), au bas-côté sud de la nef, illustre la situation précaire de ce second type d'ouvres. La dégradation de ce monument pourtant exceptionnel, représentant le donateur Henri Fabri et sa famille, est inquiétante, la perte de matière authentique sans cesse plus importante et rapide. La seconde étape de restauration prévoit un programme de mesures conservatoires étendu à l'ensemble de ce patrimoine fragile qui réclame un tel type d'intervention depuis des années. Le climat intérieur A l'occasion des travaux de réhabilitation intérieure de l'église (étape II de chantier), les valeurs de consigne pour les niveaux de température à l'intérieur de la Collégiale seront revues à la baisse pour des raisons d'économie d'énergie aussi bien que de conservation patrimoniale (16 degrés Celsius). Une stabilité des températures au cours du temps sera également recherchée afin de diminuer la violence des chocs thermiques sur les structures, et de réduire les turbulences de l'air intérieur donc le brassage des poussières. Chauffage au sol
L'option d'un chauffage par le sol a été d'ores et déjà considérée comme la seule qui permette une production de chaleur à basse température, à forte inertie thermique et uniformément étendue à toute la surface de la Collégiale. La solution est d'autant plus adéquate qu'une intervention lourde au sol de la Collégiale (avec dépose du dallage actuel) est rendue nécessaire pour les raisons de sécurité évoquées précédemment. Régulation
Le chauffage par le sol devra être complété d'une installation d'appoint à air chaud. Les bouches de pulsion seront disposées à la base des murs périphériques, permettant ainsi de contrer le mouvement d'air froid qui descend naturellement le long des murs. C'est par la maîtrise du chauffage que sera régulé le niveau du taux d'humidité de l'air intérieur, autre facteur décisif de la conservation du monument (dilatation hydrique, condensations, solution des sels) et des objets qu'il contient (boiseries, orgues, vitraux, etc.). Installations techniques et sécurité Le projet prévoit la réhabilitation complète des installations techniques, particulièrement de la distribution électrique qui ne répond plus aux exigences actuelles de fonctionnalité ni de sécurité. L'effort principal portera sur la mise en ouvre de deux équipements de sécurité indispensables qui font actuellement totalement défaut: la détection incendie d'une part, la sécurisation des voies d'évacuation d'autre part. |